Vers la page des annonces de peniches et bateaux fluviaux à vendre
Toulouse Castelnaudary

Péniche à vendre 30m

KLIPPER- 12 passagers
Certificat Européen Z3 2027
Facile à conduire
Reconstruit à neuf
Vendu avec l'activité
usage en habitation
Long: 30m  larg: 5,05m
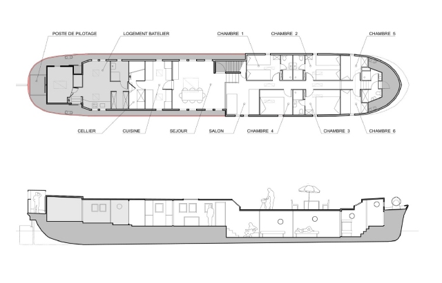
Logement batelier indépendant
2 cabines
Cabine couchage
Plan bateau fluvial
Moteur, inverseur, groupe
Clientèle fidèle
Sans soucis
Reconversion dans la batellerie
batellerie de tourisme
nécessite permis plaisance
Idéal pour commencer


Dimensions: Long: 30m  larg: 5,05m   Tir.air: 3,00m  Tir.eau: 1 à1,20m
Type: KLIPPER- 12 passagers

Bateau à passagers 12 personnes
Certificat Européen Z3 Jusqu'en 2027
Vendu avec l'activité
Reconstruit à neuf fond et intérieur
Moteur, inverseur, groupe, neufs en 2012
Idéal pour commencer tout de suite, sans soucis, une reconversion dans la batellerie de tourisme
Facile à conduire, ne nécessite qu'un permis plaisance avec extension + de 20m
Clientèle fidèle et à développer

Logement batelier indépendant, permet l'usage en habitation principale
Peut aussi convenir en bateau logement
Voir descriptif technique complet sur les photos et beaucoup plus sur notre site Web
déduire 50.000€ si achat bateau seul
Possibilité de parrainage

Téléphone: 06 86 40 66 66

Prix: 399 000 €



Envoyer un message au propriétaire du bateau


Avant d'envoyer votre message, répondez avec un nombre en chiffres à la question de calcul simple
pour vérifier que vous êtes "humain"



Vers la page des annonces de peniches et bateaux fluviaux à vendre